Codice
2245
Superficie
487 m2
Camere
4
Bagni
3
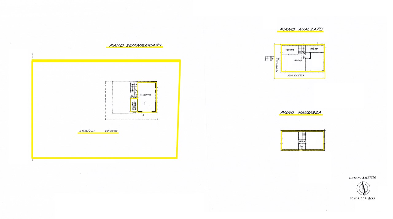
A Ossimo Inferiore, in posizione dominante, molto soleggiata e panoramica ma a pochi passi dalla piazza principale, proponiamo in vendita una villa singola circondata da circa 1.500 mq di terreno privato e recintato. La proprietà, costruita nel 1975, si distingue per il suo stile particolare e per gli spazi generosi e ben distribuiti. L’abitazione principale si sviluppa al piano rialzato e comprende una comoda zona notte con tre camere da letto e un bagno padronale. La zona giorno è ampia e luminosa, caratterizzata da un suggestivo camino centrale che separa il soggiorno dalla sala da pranzo. Da qui si accede a un soppalco a vista sulla zona giorno, attualmente utilizzato come studio, ideale come spazio di lavoro o angolo relax. Completano il piano una cucina abitabile separata, spaziosa e funzionale, e una grande terrazza panoramica affacciata sulla valle. Al primo piano si trova un appartamento trilocale indipendente, composto da soggiorno con camino, cucina abitabile, due camere da letto e un bagno, perfetto per ospiti o per creare una seconda unità abitativa autonoma. Il piano seminterrato ospita una grande taverna ideale per momenti conviviali, oltre a locali accessori come cantine, lavanderia e cinque box auto.
La villa viene venduta arredata e completa di impianto solare termico e fotovoltaico, garantendo così un buon livello di efficienza energetica. Una soluzione ideale sia come residenza principale per chi desidera vivere in un contesto tranquillo e immerso nel verde, sia come casa vacanze, pronta per essere abitata fin da subito.
Potrebbe interessarti
BORNO – VENDESI STORICA EDICOLA IN POSIZIONE STRATEGICA – PREZZO RIBASSATO A € 25.000 Hai mai...
Scopri di piùOssimo Superiore, zona alta del centro storico, proponiamo fabbricato dei primi del '900 disposto su...
Scopri di piùBorno: centro storico, al secondo e ultimo piano di una palazzina completamente ristrutturata nel 20...
Scopri di più



